

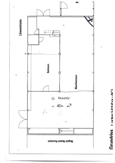
Ideal gelegen an der Löwenstrasse 56 und 58. Passend für Handwerker oder Lager und auch geeignet als Atelier für Künstler. Detailangaben gibt Ruth Lanter, erreichbar über 071 841 71 86 und 079 418 87 25 oder per Mail.
Löwenstrasse 56: Ab sofort zur Untermiete frei, sehr helle Werkstatt (Schreinerei evtl. mit Maschinenanteil, zur Mitbenutzung). Ideal für Handwerker oder Lager (beheizt, Holzboden). Fläche ab 50 m2 bis 200 m2, aufteilbar. Parkplätze vor dem Gewerberaum mietbar.



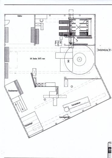
Löwenstrasse 58: Ab sofort zur Untermiete frei, sehr heller Raum. Fabrikationsraum im Obergeschoss mit Treppenzugang und Warenaufzug, beheizt. Der Raum wurde vorher für den Mübelzusammenbau genutzt. Ideal für Lager oder für Kunstatelier. Nutzfläche 290 m2 (kann unterteilt werden in 2 x ca. 140 m2). Parkplätze vor dem Gewerberaum mietbar.




